Leave a Message

Thank you for your message. I will be in touch with you shortly.

Explore My Properties

Property Description

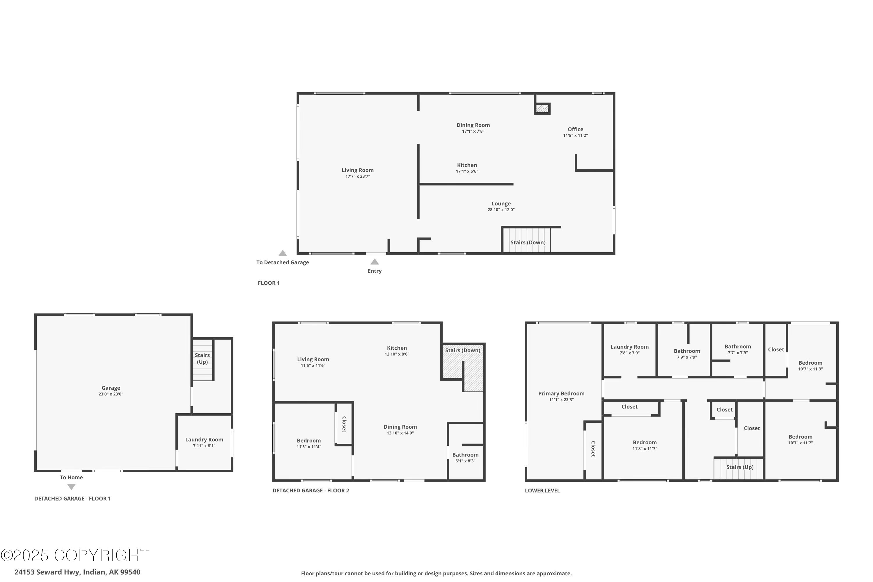
This one-of-a-kind property is looking for a new owner. Someone who wants to feel like they're living out of town, while still having modern conveniences close by. Located between Anchorage and Girdwood, this home offers outdoor recreational opportunities right outside its front door and wildlife viewing out every window, making it a personal sanctuary away from the everyday hustle and bustle.The main home has a large living area upstairs with ever-changing panoramic views of Turnagain Arm and glimpses of eagles, moose, whales and sheep on any given day. The three bedrooms are on the lower level to keep you cool during the summer months and there's a sliding glass door for easy access outside.

A large detached garage was added in 1989 with a one-bedroom apartment above that has its own stunning views. The combination of the two dwellings offers so many possibilities to build equity and passive income - either using the main house as a traditional B&B, or the ADU as an Airbnb or long-term rental option.

Overview

Property Status
Sold
Lot Size
0.67 Acres
MLS ID
25-1845
Property Type
Residential
Year Built
1968

Features & Amenities

Architecture Styles
Hlsd Rnch/Dlt Bsmnt
Water Frontage
None, Creek Access, Inlet Access
View Description
Inlet, Mountain(s), Unobstructed
Garage Spaces
2.0
Water Source
Private
Roof
Asphalt
Lot Features
Fire Service Area, City Lot, Trailside
Parking
Detached, Heated Garage, No Carport
Heat Type
Baseboard, Natural Gas, Wood Stove
Sewer
Crib, Septic Tank
Substructure
Concrete Perimeter
Elementary School
BTV-Undiscl by LL
Middle School
BTV-Undiscl by LL
High School
South Anchorage
Price Upon Request
Zoning
TA

Downloads

24153 Seward Highway

Schedule a Tour

I would love to help you see this beautiful home! As a full-service real estate agent, I can help you tour. Please submit an offer, and answer questions about the buying process.

Enter a valid email

Thank you

for your interest in 24153 Seward Highway, Indian, AK 99540

back to page
24153 Seward Highway
Navigate
24153 Seward Highway
explore in 3d
  • This one-of-a-kind property is looking for a new owner.

    Emma Shibe

I'm Interested In

24153 Seward Highway

or
  • CallEmma Shibe

    License #18051

    (907) 250-0908
  • Browse My

    Featured Listings

    • 23634 Kasilof River Circle For Sale

      $1,950,000

      23634 Kasilof River Circle, Kasilof, AK 99610

      • 2,568 Sq.Ft.
    • 23634 Kasilof River Circle For Sale

      $1,950,000

      23634 Kasilof River Circle, Kasilof, AK 99610

      • 2 Beds
      • 2 Baths
      • 1,068 Sq.Ft.
    • 2751 Pelican Drive Pending

      $729,000

      2751 Pelican Drive, Anchorage, Anchorage, AK 99502

      • 3 Beds
      • 3 Baths
      • 2,998 Sq.Ft.
    • 3930 Eric Circle Pending

      $529,000

      3930 Eric Circle, Anchorage, AK 99507

      • 4 Beds
      • 3 Baths
      • 2,004 Sq.Ft.
    • 7821 Charlotte Circle Pending

      $480,000

      7821 Charlotte Circle, Anchorage, AK 99502

      • 4 Beds
      • 3 Baths
      • 1,826 Sq.Ft.
    • 1917 Colony Place # 33 Unit: #33 For Sale

      $436,500

      1917 Colony Place # 33, Anchorage Unit: #33, Anchorage, AK 99507

      • 3 Beds
      • 2 Baths
      • 1,467 Sq.Ft.
    • 6787 Delong Landing Circle For Sale

      $425,000

      6787 Delong Landing Circle, Anchorage, AK 99502

      • 3 Beds
      • 3 Baths
      • 1,459 Sq.Ft.
    • 896 E Bobo Loop For Sale

      $325,000

      896 E Bobo Loop, King Salmon, AK 99613

      • 9 Beds
      • 8 Baths
      • 4,562 Sq.Ft.
    • L3 B5 Mountain Air Drive For Sale

      $215,000

      L3 B5 Mountain Air Drive, Anchorage, AK 99516

    • L4 B5 Mountain Air Drive For Sale

      $195,000

      L4 B5 Mountain Air Drive, Anchorage, AK 99516

    • L6 B5 Mountain Air Drive For Sale

      $190,000

      L6 B5 Mountain Air Drive, Anchorage, AK 99516

    • L7 B5 Mountain Air Drive For Sale

      $190,000

      L7 B5 Mountain Air Drive, Anchorage, AK 99516

    • L5 B5 Mountain Air Drive For Sale

      $185,000

      L5 B5 Mountain Air Drive, Anchorage, AK 99516

    View All

    Follow Us On Instagram